Le Guide essentiel pour aménager votre cellule pickup
Bienvenue dans notre guide complet dédié à l’aménagement de notre cellule pickup pour partir en voyage sur le long terme. Après avoir comparé plusieurs constructeurs dans notre précédent article, notre choix s’est porté sur ModulIdea pour équiper notre cellule Defender 130. Ce fabricant propose des cellules pickup vides, permettant une configuration totalement personnalisée à prix accessible.
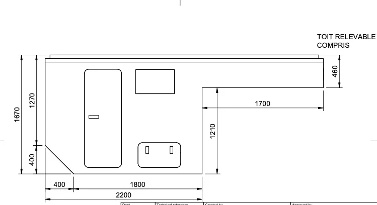
Dans cet article, découvrez en détail notre plan d’aménagement avec tous les équipements qui transforment une simple cellule pickup en véritable maison roulante.
Notre plan cellule pickup : Aménagement Détaillé
Notre cellule Defender maximise l’utilisation de l’espace disponible grâce à une zone polyvalente permettant :
– Repas conviviaux grâce au pied de table lagun
– Sessions de télétravail prolongé avec 2 ordinateurs + starlink
– Moments de détente sur nos banquettes
– Lit d’appoint 100×170 cm
Cette modularité fait de notre cellule pickup un véritable habitat adaptable à toutes les situations.
Voici ci dessous la liste de tous nos équipements avec les liens :
Douche amovible intérieur
Douche extérieur ARB
Plaque gaz PRIMUS MOJA STOVE
Pied table lagun
Toilettes sèche
Sommier froli
Conception Générale
Notre cellule pickup est spécialement conçue pour s’adapter au plateau du Defender. Elle offre une solution autonome avec un confort optimal et de nombreux rangements pour les longs voyages. Chaque centimètre carré de cette cellule a été optimisé pour maximiser l’espace sans compromettre la maniabilité, tout en respectant le PTAC du véhicule.
Section Couchage
Le cœur de notre cellule Defender : un lit fixe Queen size de 160×200 cm avec un sommier froli. Pour des voyages prolongés, un sommeil de qualité est indispensable. Ce choix de lit permanent dans notre cellule pickup garantit un repos optimal, même si cela réduit légèrement l’espace de vie. Après des journées de piste intense, ce confort n’a pas de prix !
Coin Cuisine
Notre cellule pickup intègre une kitchenette complète comprenant :
– Évier avec robinetterie
– Plaque de cuisson amovible 1 feu
– Réfrigérateur à tiroir coulissant
– Rangements optimisés pour ustensiles et provisions
La plaque amovible Primus, non fixée volontairement, offre une grande liberté d’usage. Puissante et performante, elle permet de cuisiner rapidement et efficacement, quelles que soient les conditions.
Salle de Bains
L’équipement sanitaire de notre cellule Defender comprend :
– Douche amovible avec bonde intégré par un bouchon
– Toilettes sèches à séparation d’urine
– Douche extérieure en pleine nature
Disposer de sanitaires privés dans une cellule transforme radicalement l’expérience de voyage. Pour Sophie c’était un impératif, je pense comme beaucoup de femme voyageuse.
Autonomie Énergétique de la Cellule Pickup
Notre cellule Defender embarque :
– Batterie auxiliaire lithium haute capacité
– Panneaux solaires flexibles (légèreté optimale)
– Convertisseur 220V pour tous les appareils
Autonomie complète de 2-3 jours
Les panneaux flexibles sur le toit de notre cellule pickup offrent discrétion et performance, même par temps couvert.
Pour approfondir l’installation électrique d’une cellule, consultez notre magazine #1 IntotheWild.

Chauffage et Chauffe-Eau
Pour garantir le confort dans notre cellule pickup, nous avons installé un système deux-en-un de chez Autoterm.
C’est le meilleur rapport qualité prix que nous avons trouvé, certe il n’a pas le kit altitude mais pour l’instant même au milieu des montagnes nous n’avons pas eu de problèmes. Nous attendons avec impatience ce kit pour l’adapter à notre chauffage chauffe eau.
Le chauffage diesel reste le choix optimal pour une cellule pickup : autonomie maximale et approvisionnement facilité partout dans le monde.
3 Ans avec notre Cellule pickup : plan cellule defender fournis
Après trois années d’utilisation intensive de notre cellule pickup, certains choix se confirment :
Les points forts
Douche amovible intérieur : une fonctionnalité vraiment bien pensée et parfaite lorsqu’on doit prendre sa douche dans des endroits en ville ou bien lorsqu’il fait très froid.
Lit fixe Queen size : un confort devenu indispensable en voyage, on a même mis le luxe d’ajouter une mousse à mémoire de forme qui augmente encore plus de confort.
Plaque amovible : une vraie polyvalence au quotidien
Les axes d’amélioration
Espace de couchage en bas à optimiser lorsque le toit est fermé : en conditions de vent fort, voire de tempête (et ça nous est arrivé plus d’une fois), dormir à deux devient compliqué sur la partie basse.
Bonne nouvelle : on est en pleine réflexion et on pense avoir trouvé une solution. On vous en dira plus très bientôt !
Notre cellule pickup nous a permis de vivre des aventures extraordinaires en totale autonomie.
Retrouvez nos voyages sur notre chaîne YouTube !




Bonjour,
Je ne comprends pas comment vous pouvez placer la douche et les toilettes à gauche en entrant : il y a le pan coupé extérieur de la cellule de 400 x 400 qui empêche d’avoir un sol plat…
Bonjour la douche sera sur le sol plat à l’entrée c’est une douche amovible. Le toilette sera au dessus du pan coupe ce qui fera que la hauteur du toilette sera légèrement plus haut que la normal mais les bidons du trelino s ne sont pas très haut.
Very nice post. I just stumbled upon your blog and
wanted to say that I’ve truly enjoyed surfing around your blog posts.
After all I will be subscribing to your rss feed and I hope
you write again soon!